phone 02476 939550 Contact us Main Menu

2 bed House - End Terrace For Sale

Farman Road, Earlsdon, Coventry - Corner Plot with Garage

Asking Price £245,000

Bed icon2 Bath icon1 Reception icon2

Description

  • Excellent Prominent Corner...
  • Two Double Bedrooms
  • Bags of Kerb Appeal
  • Two Lovely Reception Rooms...
  • Superb Sized Garden
  • Detached Garage With...
  • Newly Renovated Bathroom
  • Modern Fully Fitted Kitchen
  • New Double Glazed Sash Windows
  • New Boiler
A stunning two double bedroom corner plot single bay fronted, Victorian end of terrace with bags of kerb appeal and the huge advantage of a detached garage to the rear with the opportunity to create invaluable off road parking - two spacious reception rooms with dual aspect windows - beautiful refurbished modern bathroom and kitchen - newly installed double glazed windows - large rear garden - beautifully presented throughout - superb local amenities and short stroll into either vibrant Earlsdon High Street or the city centre.

A delightful and attractive single bay fronted Victorian Terrace, occupying a superb corner plot, located in the really sought after and popular location of Earlsdon. An area with so many amenities including vibrant high street, local retail vendors, cafe culture, restaurants and shops. The city centre and train station are a short distance as well, along with recreation areas.

This excellent corner plot offers an excellent size rear garden, wall and fence enclosed, secure gated side access, along with the huge advantage of a detached garage and scope to create invaluable off road parking, which is rare in this location.

The property is presented to an excellent standard and has been much improved by the current owners, with many improvements such as a lovely sized refitted first floor bathroom, new front and back doors, new boiler, insulated walls in the master bedroom, decoration and newly installed double glazed windows.

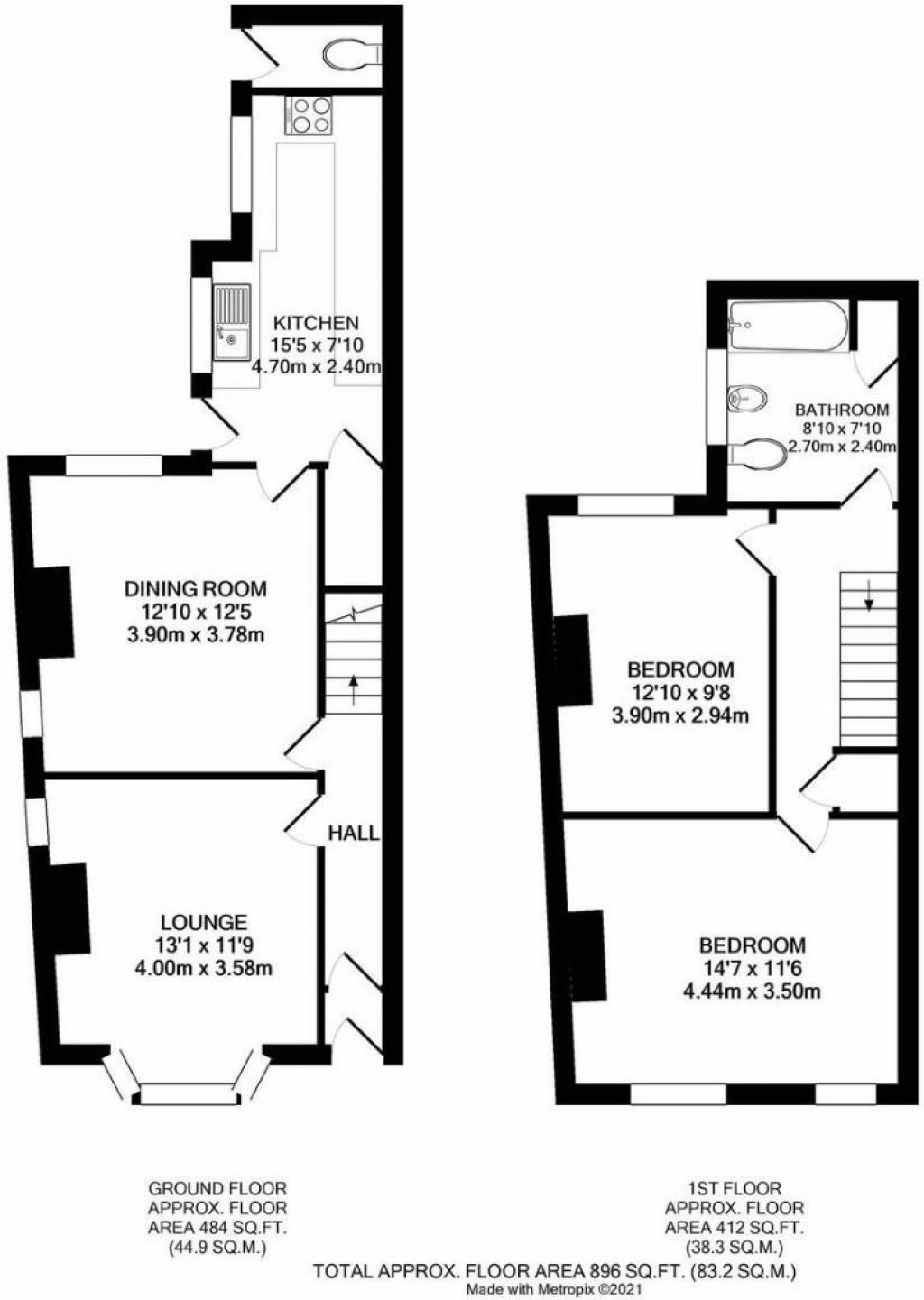
The ground floor comprises a stunning Minton tiled floor entrance hallway, with doors off to a lovely front lounge with dual aspect double glazed sash windows , bespoke fitted blinds and new flooring. The rear reception room also has new flooring, dual aspect double glazed sash windows and flows nicely into a very stylish modern, fully fitted kitchen, equipped with a range of integrated appliances including; Neff induction hob, extractor hood, Neff oven, integrated microwave, washing machine, ample units, drawers, under stairs larder cupboard, double glazed windows and newly installed double glazed door to the garden.

The first floor, has a generous sized landing area with doors off to, two excellent double bedrooms, the master with two double glazed sash windows, insulated walls in the master bedroom, the second bedroom a blank canvass for the new buyer to add their own stamp and style, offering a double glazed window overlooking the garden.

The bathroom, importantly located on the first floor is a superb size, fully renovated, comprising a bath with shower over, glass screen, wash hand basin with vanity unit, WC, heated towel rail, large airing cupboard and double glazed windows.

Full Property Summary

Entrance Hallway

Gorgeous Minton tiled floor, new front door, doors to the lounge and dining room, stairs to the first floor.

Lounge

Dual aspect double glazed sash windows to the front and side elevation, central heating radiator.

Dining Room

Dual aspect double glazed sash windows to the side and rear elevation, central heating radiator and door into the kitchen.

Kitchen

A stylish modern, fully fitted kitchen, equipped with a range of integrated appliances including; Neff induction hob, extractor hood, Neff oven, integrated microwave, washing machine, ample units, drawers, under stairs larder cupboard, double glazed windows and newly installed double glazed door to the garden.

First Floor Landing

Doors off to both double bedrooms and the stunning bathroom.

Bedroom One

A superb double room with insulated walls, two double glazed sash windows and central heating radiator.

Bedroom Two

Double glazed window to the rear overlooking the garden and central heating radiator.

Bathroom

A superb sized, refitted bathroom with stylish tiling, bath with shower over, glass screen, WC, wash hand basin with vanity unit, heated towel rail and double glazed window.

How to Make an Offer

We will require the following information before we can advise our clients to accept or reject your offer:

• Full proof of up to date deposit funds (by way of bank statement, bank screenshot, building society book or solicitors letter)
• Should your deposit funds be coming from equity within your sale we require a memorandum of sale confirming your sale agreed price and an up to date mortgage statement outlining your redemption figure
• Should your offer be a full "cash" offer we require proof of the full amount or a solicitors letter
• Proof of your mortgage decision in principle (must have a recent date, full names and loan to value ratio)
• Details including name, address, telephone number and email of who is arranging your mortgage (i.e. brokerage or direct bank)

Should you have any question on the above please contact us.

Agents Disclaimer

While we endeavour to make our sales particulars fair, accurate and reliable, they are only a general guide to the property and, accordingly, if there is any point of which is of particular importance to you, please contact the office and we will be pleased to check the position for you, especially if you are contemplating travelling some distance to view the property.

The measurements indicated are supplied for guidance only and as such must be considered incorrect.

Please note we have not tested the services, or any of the equipment or appliances in this property, accordingly we advise prospective buyers to commission their own survey or service reports before finalising the purchase.

These particulars are issued in good faith but do not constitute representations of fact, or form part of any offer or contract. The matters referred to in these particulars should be independently verified by prospective buyers or tenants.

Money Laundering Regulations

Prior to a sale being agreed, prospective purchasers will be required to produce identification documents. Your co-operation with this, in order to comply with Money Laundering regulators, will be appreciated and assist with the smooth progression of the sale.

To discuss this property call our office on:

02476 939550

or book a viewing


Download PDF